HYBRID ETP (ETP CUM STP)
Effluent Treatment Plants (ETP) for Hospitals & Mortuaries
At Ventilair Engineers Pvt. Ltd. (VEPL), we specialize in providing advanced Effluent Treatment Plants (ETPs) tailored for hospitals, mortuaries, and medical institutions, where wastewater contains both gray water and hazardous biomedical waste. Our systems are designed to handle complex effluents that require multi-stage treatment to meet strict environmental norms.
We have successfully installed over 200 biological ETP units across the country, helping clients stay compliant with the National Green Tribunal (NGT) and Pollution Control Board (PCB) regulations.
Complex Nature of Hospital & Mortuary Effluent


Hospital and mortuary wastewater includes:
- Commercial / Gray Water
- Floor cleaning and general housekeeping water
- Washroom and laundry discharge
- Kitchen and handwashing effluent
- Medical & Surgical Wastewater
- Blood, tissue fluids, surgical waste
- Lab chemicals, sample residues, disinfectants
- Antibiotics, pharmaceuticals, and microbiological waste
This mixed effluent must be treated in multiple steps to ensure that harmful chemicals, pathogens, and organic pollutants are fully neutralized.
Regulatory Compliance: BOD < 10 mg/L for Reuse
As per the latest guidelines from NGT and State Pollution Control Boards, if treated water is intended for reuse (for gardening, flushing, cooling towers, etc.), the Biochemical Oxygen Demand (BOD) must be below 10 mg/L.
To achieve this stringent standard, Ventilair Engineers Pvt. Ltd. (VEPL) integrates a Membrane Bioreactor (MBR)-based Ultra Filtration system in the final stage of treatment.
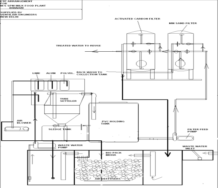
VEPL’s 4-Stage Advanced ETP Process
- Physico-Chemical Treatment
- Screening, equalization, and pH correction
- Coagulation and flocculation
- Removal of solids, heavy metals, and initial chemical load
- Biological Treatment
- Aerobic treatment via Activated Sludge, MBBR, or SBR
- Reduces BOD, COD, and organic load from both gray and biomedical wastewater
- UV Disinfection
- UV treatment or chlorination to kill pathogens, viruses, and bacteria
- Ensures safe microbiological quality
- Ultra Filtration via MBR
- Membrane Bioreactor (MBR) ensures filtration down to micro levels
- Reduces BOD to below 10 mg/L as required for water reuse
- Provides clear, odor-free, pathogen-free water suitable for non-potable reuse
Why Choose VEPL for Hospital ETPs?
- 200+ successful installations across hospitals, labs, and mortuaries
- Proven treatment of dual wastewater types (gray + biomedical)
- Compliance with NGT & PCB BOD < 10 mg/L standards for reuse
- Fully automated, space-saving systems
- Energy-efficient and low maintenance
- Designed for safe discharge and treated water reuse
Trusted by Healthcare Institutions Nationwide
We proudly serve:
- Government & Private Hospitals
- Clinics & Medical Colleges
- Diagnostic Labs & Research Institutes
- Hostels & Healthcare Residential Facilities
Our Commitment
At Ventilair Engineers Pvt. Ltd. (VEPL), we understand the sensitivity and risk associated with hospital wastewater. That’s why our ETPs are designed to offer safe, sustainable, and regulation-compliant solutions, backed by technology like MBR-based Ultra Filtration to ensure your treated water meets the highest standards.