Ventilair Engineers Pvt. Ltd.

Ventilair Engineers Pvt. Ltd.

+91-8796466431

ventilairengineerspvtltd@gmail.com

Hybrid Effluent Treatment for Proec Energy (2014) Client Overview

Proec Energy, a company engaged in a specialized and confidential manufacturing domain, approached Ventilair Engineers Pvt. Ltd. (VEPL) in 2014 for assistance with effluent treatment. Due to proprietary concerns, the client did not disclose the nature of raw materials or final products but provided two 1-liter samples of process effluent for analysis.

Challenge

Laboratory analysis of the effluent revealed extraordinarily high pollution loads, far exceeding those typical of even high-strength industrial wastewater such as from rice mills:

  • Biochemical Oxygen Demand (BOD): 31,660 mg/L
  • Chemical Oxygen Demand (COD): 11,570 mg/L

Such extreme organic loads presented a serious engineering and environmental challenge. With limited information about the effluent’s composition, conventional treatment methods alone would not suffice. VEPL viewed this as an opportunity to demonstrate the robustness and adaptability of its treatment technologies.

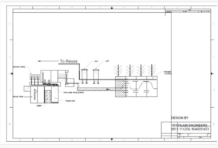
Solution: Custom 6-Stage Hybrid Effluent Treatment Plant (H-ETP)

VEPL designed a bespoke Hybrid Effluent Treatment Plant (H-ETP) combining physical, chemical, biological, and natural treatment processes. The solution was implemented in six integrated stages:

  1. Physio-Chemical Treatment
  • Processes: Coagulation, flocculation, and sedimentation
  • Objective: Initial removal of suspended solids and partial reduction of inorganic and organic load.
  1. Biological Treatment (MBBR Technology)
  • Process: Moving Bed Biofilm Reactor (MBBR)
  • Objective: Biological degradation of high organic content using activated sludge and biofilm media.
  1. Advanced Oxidation (Ozonation)
  • Process: Ozone injection
  • Objective: Oxidation of refractory organics, removal of color and odor.
  1. Disinfection
  • Processes: Ultraviolet (UV) treatment and sodium hypochlorite (hypo) dosing
  • Objective: Microbial disinfection and pathogen elimination.
  1. Natural Filtration (Reed Bed System)
  • System: Constructed wetlands with plantation-based filtration
  • Objective: Natural polishing and tertiary treatment for aesthetic and ecological quality.
  1. Ultra-Filtration
  • Objective: Final polishing to ensure BOD levels below 10 mg/L, meeting stringent discharge or reuse standards.

Outcome

Despite the extreme organic load and absence of chemical composition data, VEPL’s H-ETP solution successfully treated the effluent to meet all regulatory discharge norms. The plant has continued to operate efficiently since commissioning, showcasing:

  • Sustainable, low-maintenance performance
  • Consistent compliance with Pollution Control Board (PCB) norms
  • Capability to handle variable and undisclosed effluent compositions

Conclusion

VEPL’s innovative and adaptive approach enabled the successful treatment of one of the most challenging effluents encountered in its operational history. The project stands as a testament to VEPL’s technical expertise in custom effluent treatment solutions, even under high uncertainty and extreme pollutant conditions.

Call Now Button