Rice Mill Effluent Treatment Solutions
Understanding the Challenge: Industry-Specific Effluent Complexity
Effluent Treatment is not a one-size-fits-all solution. At Ventilair Engineers Pvt. Ltd. (VEPL), we treat Effluent Treatment Plant (ETP) design as a knowledge-intensive and case-specific discipline, guided by one critical parameter—wastewater quality.
Every industry, and often every plant within an industry, generates unique effluent characteristics. Therefore, before proposing any solution, VEPL mandates a comprehensive water quality analysis from an accredited laboratory. Only then can we determine the most suitable treatment pathway—physio-Chemical, Biological, or a Hybrid System.


Rice Mill Wastewater: A Special Case
Rice milling, especially when comparing raw rice to parboiled rice processing, produces widely varying wastewater in terms of:
- BOD (Biochemical Oxygen Demand)
- COD (Chemical Oxygen Demand)
- TSS (Total Suspended Solids)
- Oil & Grease
- Color, Odor, and pH variability
These differences necessitate a specialized approach to treatment.
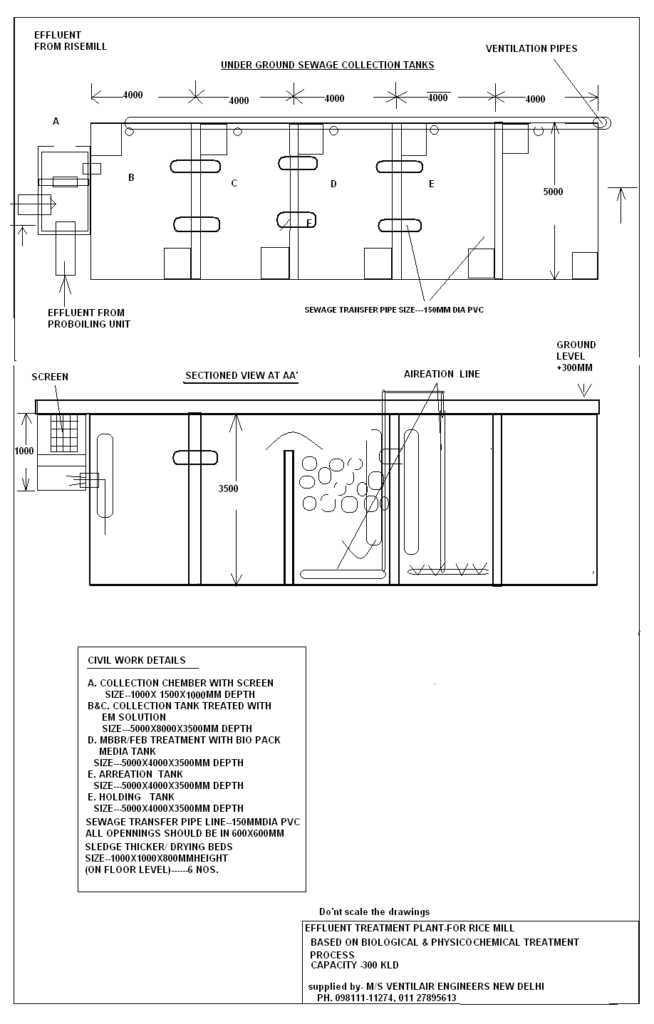
VEPL’s Innovation: Hybrid Effluent Treatment Plant (H-ETP)
To address the complexities of rice mill effluent, VEPL has developed and implemented the Hybrid Effluent Treatment Plant (H-ETP) — a proprietary solution that combines:
- physio-Chemical Treatment
- Biological Treatment
- Optional advanced tertiary steps like Ozonation, Reed Bed Systems, and Polishing Units
This integrated multi-stage approach ensures high efficiency in reducing BOD, COD, and TSS levels, even under extreme conditions. We refer to this system as a Mix Biological & Combined Treatment Plant, or more commonly as our Biological ETP Hybrid Model.
Why Choose VEPL for Rice Mill ETPs?
- Over 20 years of ETP expertise across industrial sectors
- Customized Hybrid ETPs for raw and parboiled rice mills
- In-house design, engineering, and commissioning
- Proven results for extreme BOD/COD reduction
Integration of eco-friendly & energy-efficient technology