Underground Sewage Treatment Plant (UG-STP)
Space-Saving | Odor-Free | Aesthetic Wastewater Management
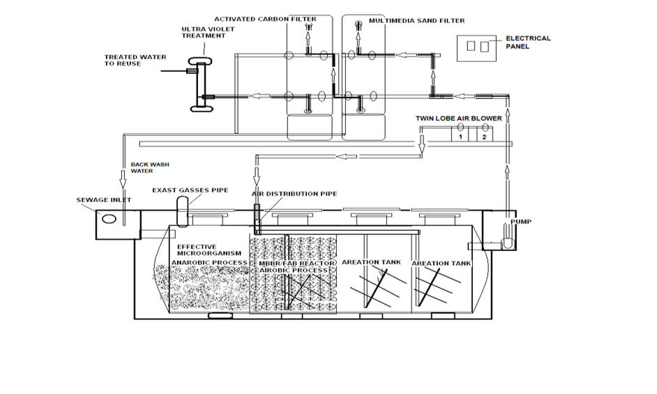
VEPL’s Underground Sewage Treatment Plant is a fully concealed, silent, and efficient wastewater treatment solution designed for urban, commercial, and residential projects where space is limited or aesthetics are a priority. Built below ground level with access hatches, our UG-STPs ensure seamless integration into landscapes, basements, parking areas, or open spaces — without disrupting site utility or visual appeal.
Product Overview
Using advanced biological processes like MBBR, SBR, or ASP, VEPL UG-STPs provide robust performance with minimal footprint and zero surface-level structures. Designed for zero noise, no odor, and user-friendly operation, these STPs are ideal for housing societies, hotels, institutions, malls, and commercial buildings.



Technical Specifications
Parameter | Specification |
Capacity | 5 KLD to 1 |
Technology | MBBR / SBR |
Installation | Completely |
Material | RCC / MSEP |
Aeration | Fine |
Automation | Manual / |
Odor | Biofilter |
Sludge | Sludge |
Tertiary | PSF + ACF |
Optional | Ultrafiltration |
Compliance | Meets CPCB |
Inlet & Outlet Water Quality Parameters
Primary Treatment (Screening, Equalization,
Oil & Grease Trap)
Parameter | Inlet | Outlet |
pH | 6.5 – 8.5 | 6.5 – 8.5 |
BOD | 250 – 400 | 150 – 200 |
COD | 500 – 700 | 300 – 450 |
TSS | 200 – 350 | 100 – 150 |
Oil & | 20 – 50 | < 20 |
Secondary Treatment (Biological Reactor +
Clarifier)
Parameter | Inlet | Outlet |
BOD | 150 – 200 | < 30 |
COD | 300 – 450 | < 100 |
TSS | 100 – 150 | < 30 |
Ammonia | 20 – 40 | < 10 |
Tertiary Treatment (Sand Filter + Carbon
Filter + UV/Chlorine)
Parameter | Inlet | Outlet |
BOD | < 30 | < 10 |
COD | < 100 | < 30 |
TSS | < 30 | < 5 |
Pathogens | Present | 99% |
Odor & | Mild | Removed |
Ultrafiltration (UF – Optional Final Polishing
Unit)
Parameter | Inlet | Outlet |
BOD | < 10 | < 5 |
TSS | < 5 | < 1 |
Turbidity | < 5 NTU | < 1 NTU |
Pathogen | 90–95% | 99.99% |
Water | Suitable | Gardening, |
Ideal Applications
- Residential Apartments &
Societies - Hotels, Resorts, & Villas
- Commercial Complexes &
Shopping Malls - Corporate Campuses & IT
Parks - Educational Institutions &
Hostels - Smart Cities & Urban
Projects
Key
Features
- Completely Underground – Saves
valuable surface space - Odor-Free & Noise-Free –
Perfect for urban areas - Modular & Expandable –
Future-ready design - Low Maintenance – Minimal
operational cost - Water Reuse-Ready – Reduces water
consumption - Fully
Automated Option – PLC / SCADA for remote monitoring