Ventilair Engineers Pvt. Ltd.

Ventilair Engineers Pvt. Ltd.

+91-8796466431

ventilairengineerspvtltd@gmail.com

VEPL Compact / Mini STP – 500 to 5000 LPD

Capsule Type | Over-the-Ground | Low Energy | MBBR-Based

Product Type: Prefabricated Sewage Treatment Plant
Capacity Range: 500 LPD to 5000 LPD
Technology: MBBR (Moving Bed Biofilm Reactor)
Design: Over-the-Ground, Capsule-Type (Plug & Play)
Energy Rating: Low Power Consumption
Applications: Villas, Homes, Offices, Schools, Clinics, Resorts

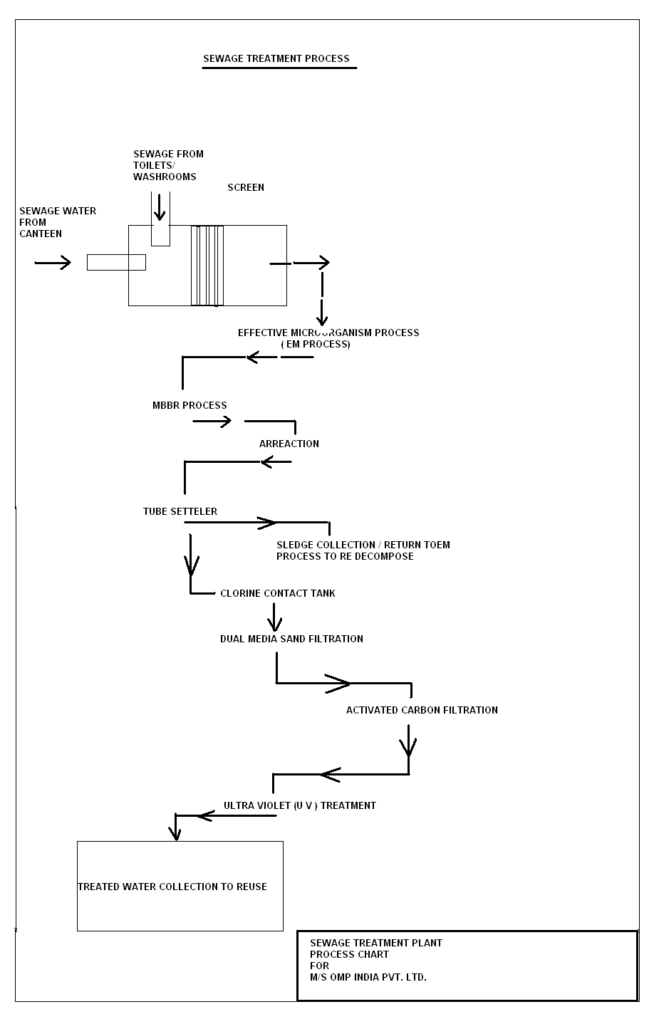
The VEPL Capsule-Type STP is a compact, pre-engineered, and ready-to-install sewage treatment solution for small residential or institutional applications. Built using MBBR (Moving Bed Biofilm Reactor) technology, it provides robust biological treatment in a low-maintenance, low-energy design—ideal for decentralized setups.

This plant is designed for above-ground (over-the-ground) installation, eliminating the need for excavation or complex civil work. It includes only the most essential components, making it cost-effective and easy to operate.

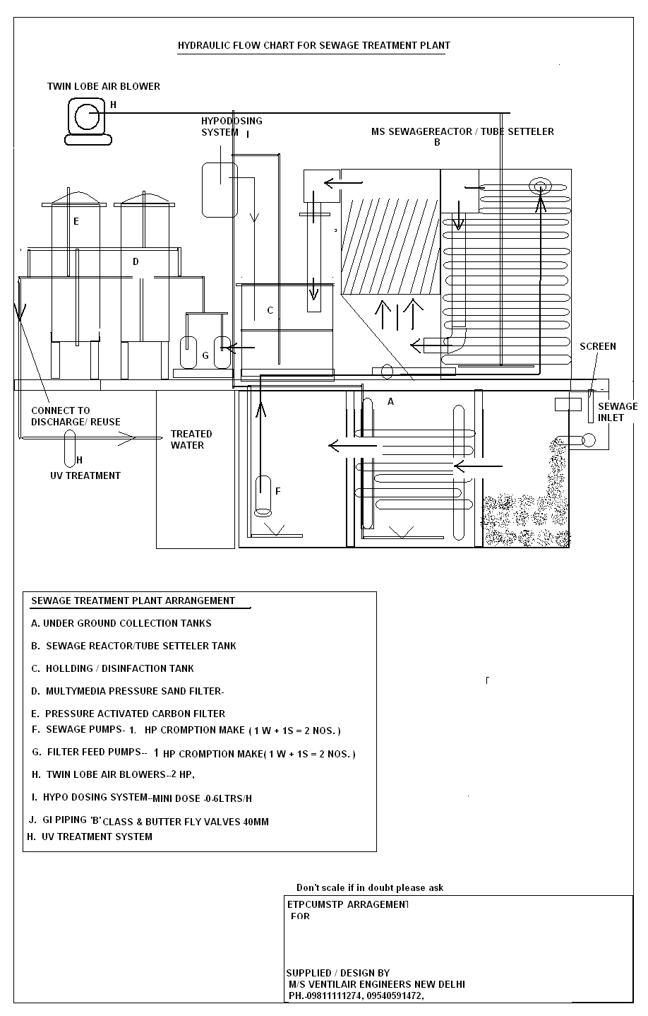
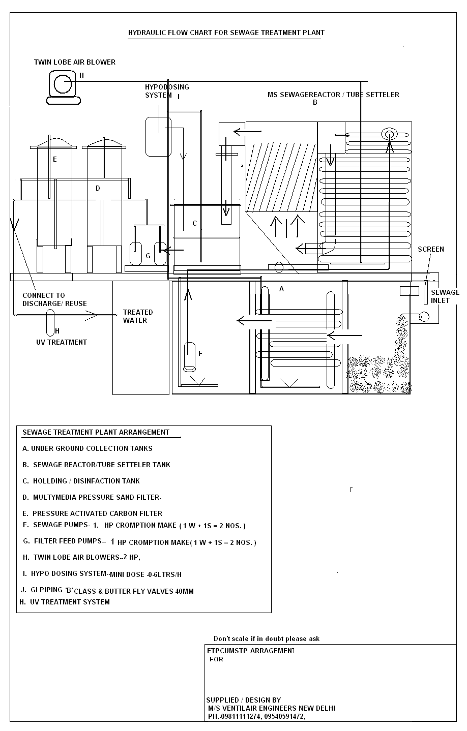
Scope of Supply – What’s Included:

  •  Screening Unit – Removes large solids
  •  Oil & Grease Trap – Protects biological treatment stage
  •  Equalization Tank – For consistent flow and load buffering
  • MBBR Reactor with Bio-Media – Efficient biological processing
  •  Fine Bubble Diffusers – High-efficiency aeration
  •  Air Blowers (1 Working + 1 Standby)
  •  Clarification by Gravity – Settling inside MBBR outlet zone
  •  Pressure Sand Filter (PSF) – Suspended solids removal
  •  Activated Carbon Filter (ACF) – Removes odor, color, organics
  • Disinfection – Ultra violet treatment & chlorine dosing
  •  Sludge Holding Tank – For temporary sludge storage
  •  Sludge Transfer Pump (1W + 1S)
  •  Control Panel – Semi-automatic with indicators
  •  All Piping, Valves & Fittings – Fully integrated skid system

 Technical Specifications

Specification

Details

Design Type

Capsule-Shaped, Prefabricated, Over-the-Ground

Technology

MBBR (Moving Bed Biofilm Reactor)

Capacity Options

500 / 1000 / 2000 / 3000 / 5000 LPD

Material of Construction

FRP / MS (Epoxy Coated) / SS Internals

Power Supply

230V (Single Phase) or 415V (3-Phase), 50 Hz

Automation Level

Semi-Automatic (Optional PLC on request)

Redundancy

1 Working + 1 Standby for Pumps & Blowers

Installation

Plug & Play – Surface-mounted (no excavation)

Noise Level

< 60 dB

 

 Water Quality – Inlet vs Treated Outlet

Parameter

Raw Sewage

Treated Effluent

BOD (mg/L)

250 – 400

< 30

COD (mg/L)

500 – 600

< 50

TSS (mg/L)

200 – 300

< 20

Turbidity (NTU)

80 – 150

< 10

pH

6.5 – 8.5

6.8 – 8.2

Oil & Grease

10 – 20

< 5

Odor/Color

Objectionable

Removed

 Reuse Applications: Gardening, irrigation, floor cleaning, soak pit discharge

 Typical Applications

  •  Individual Villas & Farmhouses
  •  Small Offices & Commercial Plots
  •  Schools, Clinics, and Training Centers
  •  Guest Houses & Budget Hotels
  •  Compact Housing Societies

 

 Why Choose VEPL Capsule STP?

  •  Low Power Usage – Designed for energy efficiency
  •  No Excavation Required – Just place on a flat surface
  •  1W + 1S Pumps/Blowers – Continuous, reliable operation
  •  Simple Maintenance – No skilled operator required
  •  Compact Footprint – Ideal for tight urban plots
  •  Fast Installation – Commissioning within 2 days
Call Now Button